
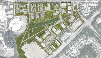
Retrouvez les nouveaux visuels du futur eco quartier de la Remise sur cette page : https://www.voisins78.fr/territoire/la-remise/la-remise-l-exposition.html Ils sont également exposés au premier étage de la mairie, du lundi au vendredi de 8h30 à 12h et de 13h30 à 17h15